Logo

Ihr Investment mit Zukunft: 2-Zimmer-Wohnung in gefragter Lage - Mit Eigener Garage !

Front
Wohnküche
Wohnküche
Schlafzimmer
Bad
Abstellraum
Plan
ImmoNr.
oO-2025-00259
Objektart
Wohnung
Objekttyp
1.OG
Vermarktungsart
Kauf
PLZ
5280
Ort
Braunau am Inn
Wohnfläche
61 m²
Anzahl Zimmer
2
Kaufpreis
189.000,00 €
Baujahr
1800
Energieausweis gültig bis
20.02.2035
Provision
3,6%

Beschreibung

Willkommen in deinem zukünftigen Zuhause im charmanten Braunau am Inn! Diese teilsanierte Wohnung in einem historischen Gebäude von 1800 kombiniert den Charme vergangener Tage mit modernen Annehmlichkeiten. Auf 61 m² erwarten dich zwei gut geschnittene Zimmer, ideal für Singles oder junge Paare, die ihren ersten Schritt in die eigenen vier Wände machen wollen.

Die Wohnung befindet sich im 1. Obergeschoss eines dreistöckigen Hauses und glänzt mit einer gelungenen Mischung aus Laminat- und Fliesenböden, die im Zuge der letzten Modernisierung 2025 erneuert wurden. Besonders ansprechend: die offene Küche, die nahtlos in den Wohnbereich übergeht und das gemütliche Raumgefühl unterstreicht.

Ein weiterer Pluspunkt ist das sanierte Badezimmer, das dir modernen Komfort bietet. Ab dem 1. Dezember 2025 kannst du hier einziehen und dein neues Leben in dieser einladenden Atmosphäre beginnen.

Schlage schon mal die Kisten für deinen Umzug zusammen und freue dich darauf, in dieser charmanten Wohnung Geschichte zu erleben und gleichzeitig in die Zukunft zu blicken. Werde Teil dieser idyllischen Gemeinschaft in Braunau am Inn!

Lage

Die Wohnung befindet sich in einer zentralen Lage in Braunau am Inn mit ausgezeichneter Anbindung an Geschäfte des täglichen Bedarfs, Schulen, Ärzte und Freizeitmöglichkeiten.

Einkaufsmöglichkeiten:

Supermärkte (Billa, Spar, Hofer) nur wenige Minuten entfernt
Einkaufszentrum „Innpark“ für Shoppingmöglichkeiten
Zahlreiche Bäckereien, Cafés und Restaurants in der Umgebung

Bildungseinrichtungen:

Kindergarten & Volksschule in fußläufiger Nähe
Gymnasium & Berufsschulen wenige Minuten mit dem Fahrrad oder Auto
FH Oberösterreich (Campus Braunau) bietet moderne Studiengänge

Gesundheitsversorgung:

Ärztezentrum & Apotheken direkt in der Umgebung
Krankenhaus Braunau in wenigen Minuten erreichbar

Freizeit & Aktivitäten:

Inn-Ufer & Erholungsgebiete für Spaziergänge & Radtouren
Sportanlagen & Fitnessstudios in unmittelbarer Nähe
Kultur- und Veranstaltungsorte für Unterhaltung und Abwechslung

Karte

Ausstattung Beschreibung

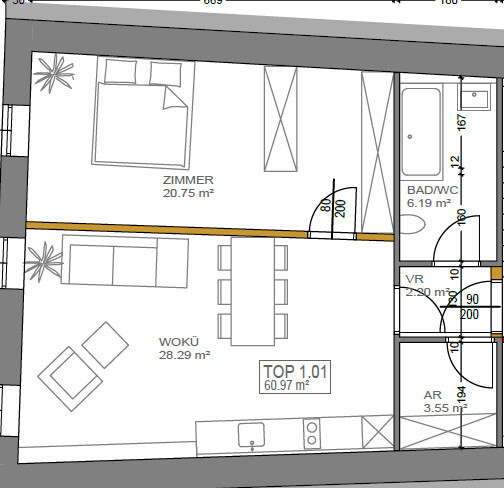
✔ Wohnfläche: 60,97 m²
✔ Zimmer: 2 (Schlafzimmer + Wohnküche)
✔ Wohnküche: 28,29 m² – Offener, lichtdurchfluteter Wohnbereich mit moderner Küche
✔ Schlafzimmer: 20,75 m² – Ruhiger Rückzugsort mit viel Platz
✔ Bad/WC: 6,19 m² – Stilvolle Sanitärausstattung mit Badewanne
✔ Vorraum (VR): 2,80 m² – Funktionale Gestaltung für Stauraum
✔ Abstellraum (AR): 3,55 m² – Praktischer Stauraum für Haushaltsgegenstände

✔Parkplatz im Eigentum

Sonstige Angaben

Diese Wohnung kombiniert modernes Wohnen mit perfekter Infrastruktur und einer attraktiven Lage.

Vereinbaren Sie noch heute eine Besichtigung und überzeugen Sie sich selbst!

Kontaktieren Sie uns für weitere Informationen!

Ansprechpartner

Weitere ähnliche Immobilien

LS 28
Toplage: Attraktive Anlegerwohnung mit Potenzial
Datensatznr
167
ImmoNr.
oO-2023-00181
Kaufpreis
176.225,00 €
Wohnfläche
50 m²
Anzahl Zimmer
2
Ort
Braunau am Inn
PLZ
5280
Aussen
Geräumige 3-Zimmer Wohnung in der traumhaften Braunau Altstadt
Datensatznr
169
ImmoNr.
oO-2023-00182
Kaufpreis
233.590,00 €
Wohnfläche
67 m²
Anzahl Zimmer
3
Ort
Braunau am Inn
PLZ
5280
Straßenseite
Wunderschöne 2-Zimmer Anlegerwohnung in der Altstadt
Datensatznr
171
ImmoNr.
oO-2023-00183
Kaufpreis
229.653,00 €
Wohnfläche
58 m²
Anzahl Zimmer
2
Ort
Braunau am Inn
PLZ
5280
Straßenseite
Kleine Anlegerwohnung in einer der prächtigsten Straßen der Braunauer Altstadt
Datensatznr
173
ImmoNr.
oO-2023-00184
Kaufpreis
164.492,00 €
Wohnfläche
40 m²
Anzahl Zimmer
1
Ort
Braunau am Inn
PLZ
5280
LS 28
Wohnen in einer der prächtigsten Straßen der Braunauer Altstadt - Ideal für Anleger
Datensatznr
175
ImmoNr.
oO-2023-00185
Kaufpreis
184.275,00 €
Wohnfläche
52 m²
Anzahl Zimmer
2
Ort
Braunau am Inn
PLZ
5280
Stadtplatz 30/1
5280 Braunau
Rene Koder: +43 676 6217420
Nina Krämer: +43 664 411 71 51
"Lokal verwurzelt in Braunau am Inn. Lesen Sie, was Ihre Nachbarn über uns sagen."
SCAN ME! 
apartmentenvelopephone-handset
linkedin facebook pinterest youtube rss twitter instagram facebook-blank rss-blank linkedin-blank pinterest youtube twitter instagram